Ressourcez-vous dans l’un de nos chalets de vacances en location à Algajola
Nos chalets vous garantissent un confort de vie à la hauteur de vos attentes.
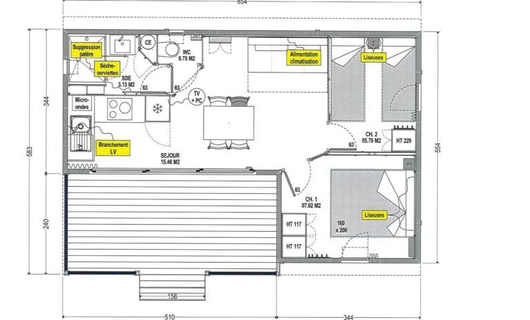
Découvrez les caractéristiques du chalet H ou « modèle hôtelier »
Vous souhaitez bénéficier d’un logement équipé, climatisé et spacieux pour profiter pleinement de nos vacances ? Dans ce cas, Cala Di Sole vous recommande la location de nos chalets. Vous pouvez choisir parmi trois types de logements.
Le chalet H « modèle hôtelier » met à votre disposition :
- deux chambres et deux salles de bains avec WC autour d’un séjour et d’une cuisine fonctionnelle ;
- une chambre qui dispose d’un lit de 140 cm et une autre disposant de deux lits de 90 cm pouvant se rapprocher ;
- la cuisine comprend un véritable frigo avec congélateur, un lave-vaisselle, un micro-ondes, quatre feux de cuisson à gaz, et de nombreux rangements ;
- la baie vitrée du salon s’ouvre sur une vaste terrasse, idéale pour profiter d’un repas en extérieur pour deux couples adultes ;
- chaque chambre dispose d’une porte indépendante.
Découvrez les spécificités du chalet F ou « modèle familial »
Le chalet F « modèle familial » met à votre disposition :
- un vaste séjour avec cuisine et deux chambres, dont l’une pour « adulte », spacieuse et qui dispose d’un placard de rangement et d’un lit de 140 cm, et l’autre plus petite pour les enfants avec deux lits de 90 cm pouvant aussi se rapprocher pour organiser le couchage d’un couple ;
- la cuisine comprend un véritable frigo avec congélateur, un lave-vaisselle, un micro-ondes, quatre feux de cuisson à gaz, et de nombreux rangements ;
- une salle de bains fonctionnelle avec lave-linge et des toilettes séparées ;
- la baie vitrée du salon s’ouvre sur une vaste terrasse parfaite pour les repas en extérieur.
Découvrez les particularités du chalet « plein air »
Le chalet « plein air » met à votre disposition :
- un vaste séjour avec cuisine, deux chambres dont une pour « adultes », qui est spacieuse et qui dispose d’un placard de rangement et d’un lit de 140 cm et l’autre plus petite pour les enfants avec deux lits de 90 cm pouvant se rapprocher pour organiser le couchage d’un couple ;
- la cuisine comprend un véritable frigo avec congélateur, un lave-vaisselle, un micro-ondes, quatre feux de cuisson à gaz, et de nombreux rangements ;
- une salle de bains fonctionnelle avec toilettes séparées ;
- la baie vitrée du salon s’ouvre sur une vaste terrasse pour s’installer à l’extérieur durant les repas.
Si vous hésitez quant à votre choix de location de logement, n’hésitez pas à consulter notre page dédiée à nos résidences pour prendre connaissance de l’intégralité des habitations auxquelles vous avez accès.
Vous pouvez également consulter nos tarifs, ou utiliser notre formulaire de contact si vous désirez des renseignements complémentaires.
Passez un agréable moment en réservant un de nos chalets



